Property Detail

73 Stanford

Lompoc CA 93436

$649,500

Status: Active

Property Details

Description

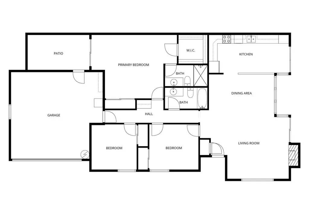
Priced Just Reduced! Don't miss this opportunity just steps from the golf course and nestled in the highly sought-after Country Club neighborhood, this beautifully situated single story cluster home on a corner-lot offers the perfect blend of peaceful country club living and everyday convenience. Exceptional curb appeal begins with an expansive, lush front yard and continues inside where soaring cathedral ceilings and abundant natural light create a bright, airy feel throughout. The spacious living room features a cozy fireplace and sliding glass doors that open to a large patio--perfect for indoor-outdoor living and entertaining. The sun-filled kitchen showcases stainless steel appliances, generous counter space, and an open breakfast bar that flows seamlessly into the dining area, creating an inviting layout for gatherings. A sliding glass door provides easy patio access for effortless al fresco dining. This 3 bedroom, 2 bath home includes a private primary suite with its own sliding glass door to a secluded courtyard retreat and a generously sized walk-in closet. Additional highlights include a 2-car attached garage and a functional layout designed for comfort. With close proximity to Vandenberg Space Force Base and easy access to Hwy 1 for commuting to Santa Barbara, the location is ideal for military relocation and buyers seeking lifestyle and accessibility. With Stanford Circle access to the golf course, you can enjoy serene Country Club golf course living while living minutes from Vandenberg Space Force Base, wineries & everything offered by California's central coas

Map Location

Listing provided courtesy of Tammy Atkin of Coldwell Banker Select Realty. Last updated . Listing information © 2025 Pacific Sothebys International Realty.

  • Log in
  • ×