Property Detail

7811 Calisia

Fontana CA 92336

$799,000

Status: Active

Property Details

Description

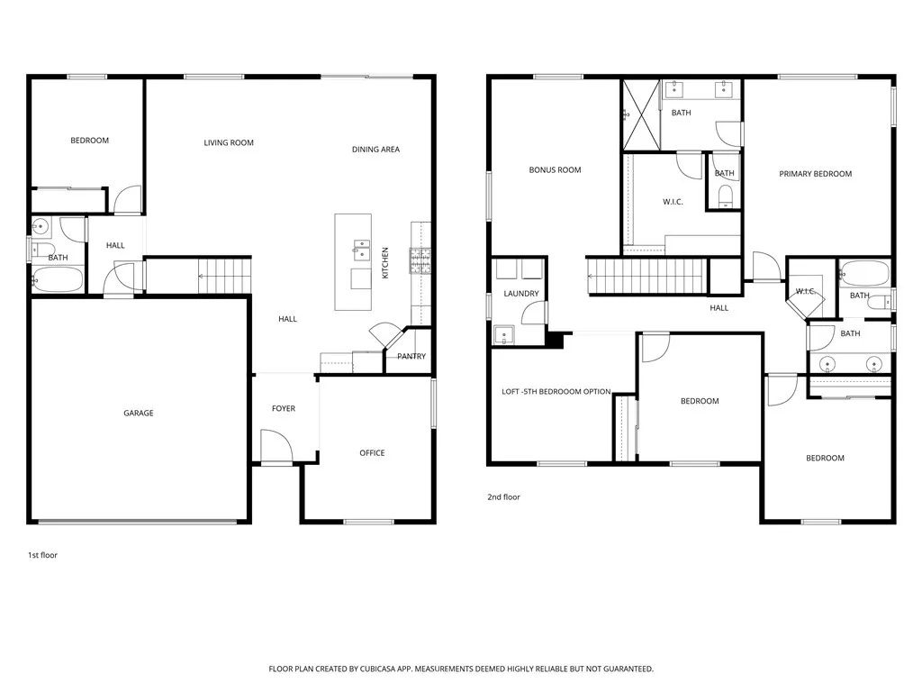
Turn-key North Fontana pool home offering 4 bedrooms, 3 bathrooms, and a highly desirable open-concept floor plan, ideally situated on a cul-de-sac with no HOA. This spacious two-story residence features a downstairs bedroom and full bathroom, ideal for guests, multigenerational living, or a private home office. An additional downstairs office/study provides even more flexibility for todays lifestyle needs.The inviting great room showcases a large kitchen island, dining area, and beautifully appointed kitchen with quartz countertops and upgraded stainless steel appliancesall seamlessly opening to a generous family room, creating the perfect space for both everyday living and entertaining.Upstairs, youll find a versatile bonus room ideal for a game room or media space, along with an additional loft area that offers a potential 5th bedroom option. The spacious primary suite features a large walk-in closet, dual sinks, and a walk-in shower. Two additional secondary bedrooms, an upstairs hall bathroom with dual sinks, and a convenient upstairs laundry room with sink complete the upper level. Additional highlights include recessed lighting, dual-zone A/C for optimal comfort and drought tolerant landscape. Step outside to your private backyard retreat featuring a gorgeous pool and a covered patioperfect for relaxing or entertaining year-round. Additional features include solar and an unbeatable location in desirable North Fontana, with convenient access to the 10, 15, and 210 freeways, and just minutes from shopping, dining, and entertainment at Victoria Gardens.

Map Location

Listing provided courtesy of Rebecca Anderson of CENTURY 21 EXPERIENCE. Last updated . Listing information © 2025 Pacific Sothebys International Realty.

  • Log in
  • ×